Характеристики
Рабочее напряжение, В
—
6000(10000)
Серия камеры
—
КСО-386
Схема исполнения
—
03-400
Номинальный ток главных цепей, А
—
400
Тип коммутационного аппарата
—
Выключатель нагрузки ВНА
Схема исполнения, назначение
—
отходящая линия, ввод
Все характеристики
Нашли дешевле?
Наличие уточняйте у наших менеджеров
Документы
babe5b437533c3ce6b55fd336f4294ea
33,4 кб
b20f21ea965da21fee2e8857e194a587
51,9 кб
Рабочее напряжение, В
6000(10000)
Серия камеры
КСО-386
Схема исполнения
03-400
Номинальный ток главных цепей, А
400
Тип коммутационного аппарата
Выключатель нагрузки ВНА
Схема исполнения, назначение
отходящая линия, ввод
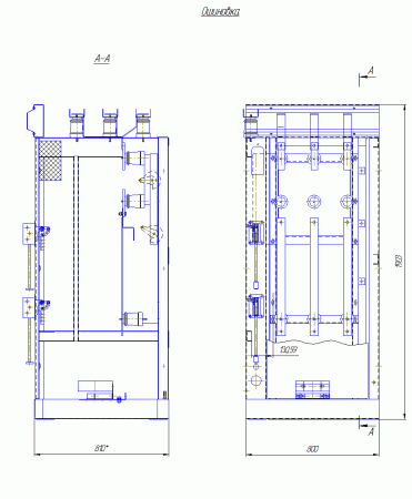
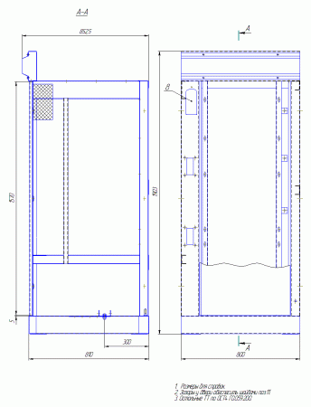
Габаритные размеры ДхШхВ, мм
800x800x1900
Масса, кг
210
