Характеристики
В наличии
—
Да
Цвет металлокострукции
—
синий (RAL 5015)
Масса, кг
—
72
В корзину
Купить в 1 клик
Наличие уточняйте у наших менеджеров
Описание
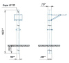
Комплект крепления разъеденителя РЛНД и привода ПРНЗ-10 на столб
Разъеденитель РЛНД в комплект поставки - не входит.
Тяги для привода ПРНЗ-10 (РА) в комплект поставки - не входит
Разъеденитель РЛНД в комплект поставки - не входит.
Тяги для привода ПРНЗ-10 (РА) в комплект поставки - не входит
Документы
Вам также может понравиться
